Vasat Vita Office and Residence
As visitors step inside, they are greeted by a humble yet inviting open space. This design choice reflects the client's dual role as both visionary and architect, driven by a personal dream of preserving a patch of land for family sports, e.g., badminton matches during winter. Spatial distribution unfolds gradually, transitioning from more public realms to intimate, private spaces as one ascends vertically and sideways parallelly.
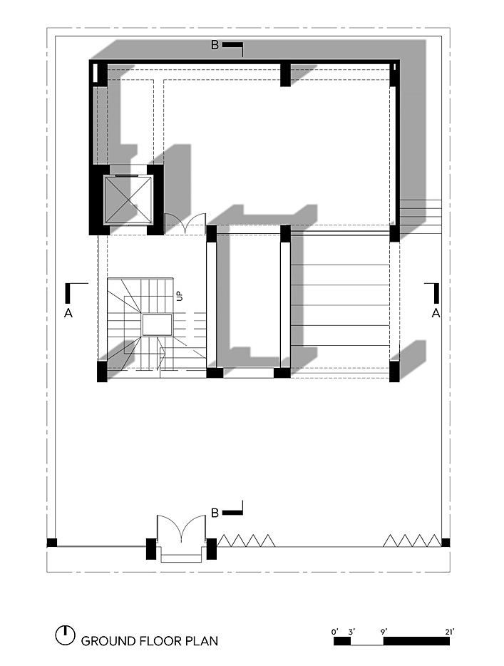
Drawing Inspiration from the principles of Vaastu Shastra, the layout unfolds within 9 square grids, with the central grid serving as an open-to-sky courtyard to enhance positive energy flow. This courtyard, along with a waterbody, also functions as a micro-climatic passive cooling feature, ensuring a comfortable living environment with ample natural light and ventilation throughout the space. The ground floor houses the architect’s design studio with an open workspace. The ceiling incorporates a waffle slab construction method, integrating traditional clay pots as fillers. An open entryway welcomes the building and a visually interesting protruded volume is cantilevered from the main building.
The building is enveloped in a simple perforated façade, inspired by the designer's nostalgic memories of the architectural motif found in his childhood. These perforations offer a personal touch while also efficiently managing solar heat, ensuring abundant natural light and ventilation. Glass surfaces are consciously brought inside as the secondary layer to the perforated brick façade. So, the sun cannot directly hit the glass surface. As a result, the inside temperature is cooler than the outside in summer. A layer of greenery planted between the brick façade and glass windows provides a calming element for the occupants. Adding a layer of nature in the interior was intentional since it enhances both the environmental performance and the well-being of the building's occupants. Focus was given on integrating nature into the project and it highlights the importance of designing spaces closely connected to nature for sustainable living.
© Vuumaatra Consultants
In conclusion, the project demonstrates a commitment to sustainable design principles, integrating local materials, passive cooling strategies, and innovative structural solutions. The sensitively crafted use of space, emphasis on energy efficiency, and consideration for cultural, historical, and environmental factors showcase a holistic approach to sustainable architecture.
© Vuumaatra Consultants
The architectural approach incorporates passive cooling strategies, utilizing energy transfer to achieve temperatures lower than those in the surrounding environment. The selection of building materials was guided by cultural appropriateness, local availability and sustainable factors. Brick was most suitable for this and concretes were used for structural members.
Privacy Layering of Space from Public to Private © Vuumaatra Consultants
SIMILAR POST
A Dialogue of Place & Passage: Osmani International Airport
Airports are considered to be …
Touch, Feel, Heal: A New Paradigm for Sensory Therapeutic Hospital Design in Bangladesh
The inspiration for this hospital …
A Journey Beneath the Surface: An Oceanarium Complex, Sonadia Island
Sonadia Island is a small …
Exploring to the Deep: An Oceanarium Complex
Project Introduction: In August 2010, …
RECENT UPDATES
MOST VISITED
Touch, Feel, Heal: A New Paradigm for Sensory Therapeutic Hospital Design in Bangladesh
25 August, 2025 || Total views: 4096
Exploring to the Deep: An Oceanarium Complex
08 May, 2025 || Total views: 3880
A Journey Beneath the Surface: An Oceanarium Complex, Sonadia Island
28 June, 2025 || Total views: 3343
Reviving The Traditional Trade Culture of Khatunganj, Chattogram
20 February, 2025 || Total views: 3125